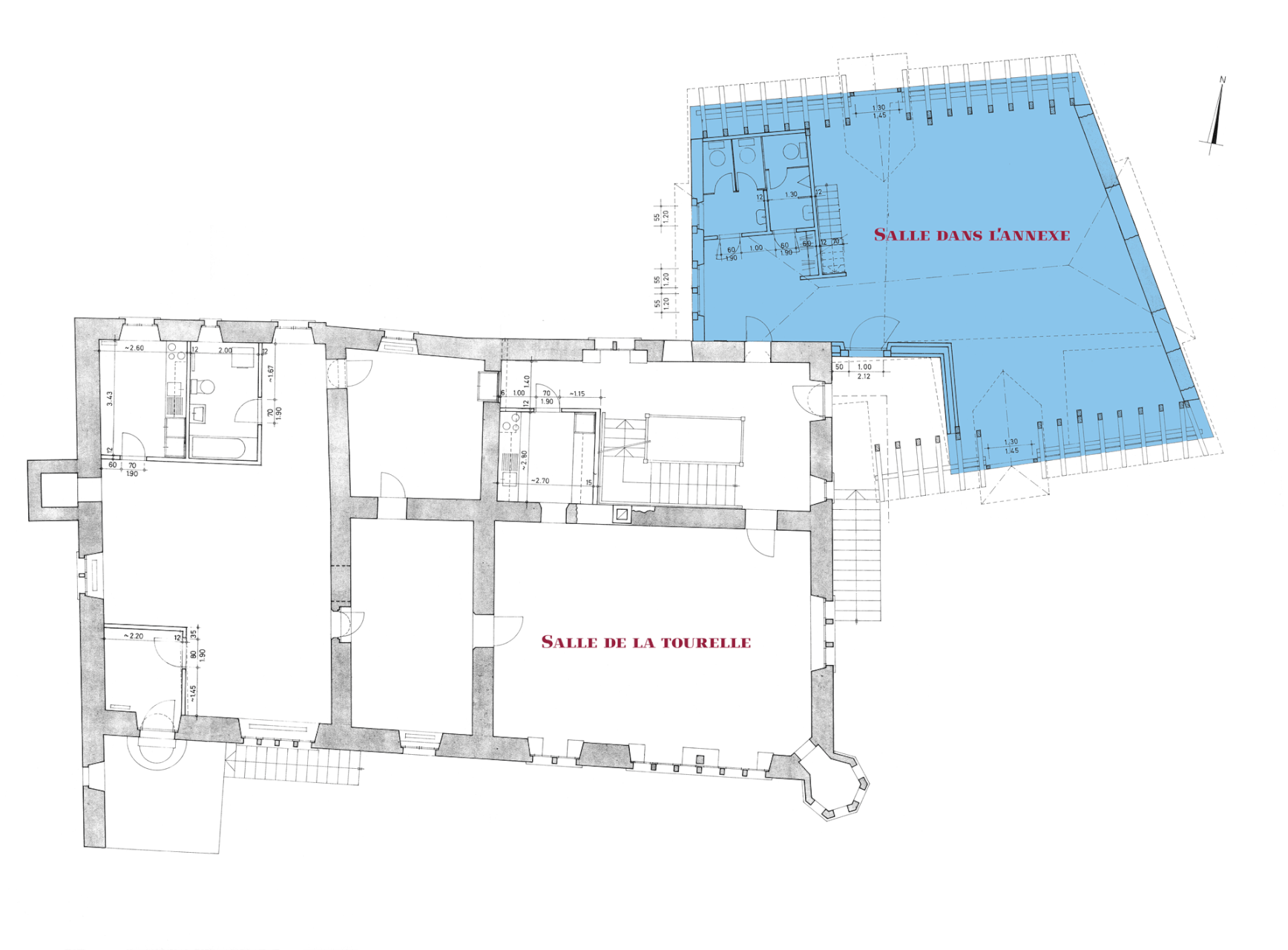
Salle de l’annexe

La salle de l’annexe est la plus grande salle du musée. Nous vous y servirons volontiers un repas typique de la région. Elle convient également pour les séminaires et les ateliers. Jusqu’à 40 personnes autour de tables, jusqu’à 50 personnes avec des chaises de concert.

Prix de la location :
Journée entière Fr. 300.-
Demie-journée Fr. 190.-

Pour tout renseignement concernant l’offre, les prix, l’occupation et les réservations.

Contact
Rebbaumuseum am Bielersee «Hof» in Ligerz
Aperçu de la protection des données

Ce site utilise des cookies afin de t'offrir la meilleure expérience utilisateur possible. Les informations des cookies sont stockées dans ton navigateur et exécutent des fonctions telles que te reconnaître lorsque tu retournes sur notre site et aider notre équipe à comprendre quelles sections du site sont les plus intéressantes et les plus utiles pour toi.